BIGORRA Y MIR ARQUITECTOS

ARQUITECTURA, PATRIMONIO Y GESTIÓN URBANÍSTICA
 

Telecabina Borreguiles

Transformación y ampliación del primer telecabina construido en Sierra Nevada, en sus estaciones superior e inferior.

La estación inferior se sitúa en el Edificio Telecabina, en el área residencial de Sierra Nevada, y está envuelta por el Hotel Telecabina y diversos restaurantes y almacenes. La estación superior se encuentra situada en Borreguiles, junto al complejo de equipamientos del área de nieve.

  • 2.3.2_1-PORTADA
  • ESTACIÓN INFERIOR TELECABINA BORREGUILES. NIVEL DE ACCESO
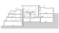
  • ESTACIÓN INFERIOR TELECABINA BORREGUILES. SECCIÓN
  • ESTACIÓN INFERIOR TELECABINA BORREGUILES. FACHADA
  • ESTACIÓN INFERIOR TELECABINA BORREGUILES. PROCESO CONSTRUCTIVO
  • ESTACIÓN INFERIOR TELECABINA BORREGUILES
  • ESTACIÓN SUPERIOR TELECABINA BORREGUILES. NIVEL DE ACCESO
  • ESTACIÓN SUPERIOR TELECABINA BORREGUILES. SECCIÓN
  • ESTACIÓN SUPERIOR TELECABINA BORREGUILES. FACHADA
  • ESTACIÓN SUPERIOR TELECABINA BORREGUILES. PROCESO CONSTRUCTIVO
  • ESTACIÓN SUPERIOR TELECABINA BORREGUILES.




 
Correo
Llamada
Asignación
LinkedIn